Capannone industriale in vendita a Concordia Sulla Secchia (MO)

Rif: IMMO-102615972
Condividi Linkedin Whatsapp Stampa
€ 253.000
Vendita
Capannone industriale
1000 Mq
Classe energetica Non indicata
Fabbricato con terreno
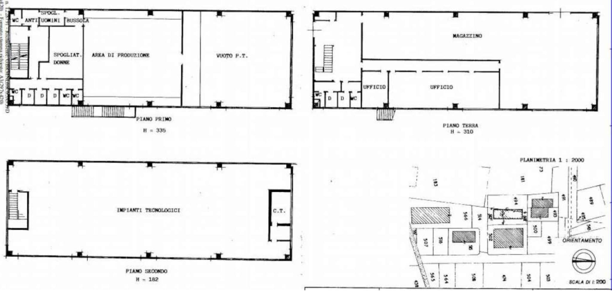
Il fabbricato è posto su di un lotto di terreno pari a circa 1.880 mq, al centro dell'area esterna di pertinenza l'edificio si sviluppa su tre piani fuori terra, per una superficie lorda complessiva di 1.220 mq, con destinazione d'uso produttiva, con i relativi uffici.

Dettaglio immobile

Contratto Vendita
Rif IMMO-102615972
Prezzo € 253.000
Provincia Modena
Comune Concordia Sulla Secchia
Indirizzo Via Agostino Novella 35
Superficie 1000 mq
Classe energetica Non indicata
Ascensore no

Consistenze

Descrizione Superficie Sup. comm.
Principali
Capannone - piano terra 1.000 Mq 1.000 Mqc
Totale 1.000 Mqc

Planimetrie

Richiedi maggiori informazioni

Autorizzazione al trattamento dei dati personali+
Dichiaro di aver letto l'informativa sulla privacy ed accetto le condizioni d'utilizzo del servizio.
Riempi il campo con il codice riportato nell'immagine*
Codice Captcha
Chiamaci Contattaci