Ufficio in vendita a Casalgrande (RE)

Rif: IMMO-110403943
Condividi Linkedin Whatsapp Stampa
€ 266.475
Vendita
Ufficio
331 Mq
Classe energetica Non indicata
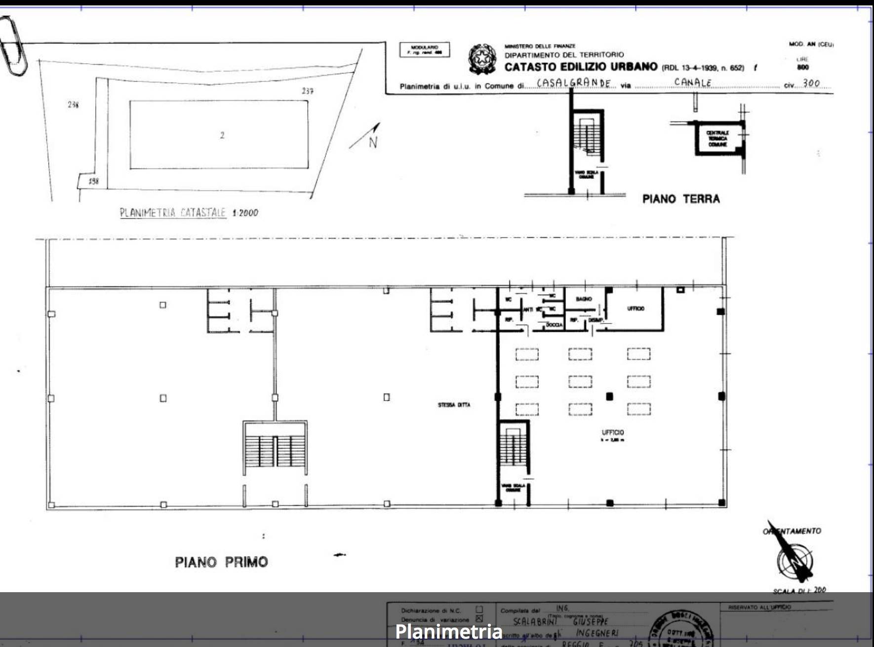
Sant'Antonino frazione di Casalgrande L'unità immobiliare, oggetto di analisi, fa parte di un fabbricato ad uso commerciale/direzionale, costituito da varie unità disposte su due piani fuori terra. La tamponatura esterna del fabbricato, è costituita da pannelli orizzontali in c.a. e da una finestratura a nastro, che corre perimetralmente lungo tutto l'edificio. L'edificio, infine, è dotato di un'area esterna pertinenziale, comune a tutte le unità, e presente una recizione continua, costituita da un muretto in cls con sovrastante cancellata metallica e dotata di due cancelli carrabili automatizzati. L'asset immobiliare in esame è sito in un'area dotata di buona accessibilità tramite la rete stradale statale ed autostradale. Il fabbricato, di cui l'u.i. in oggetto fa parte, esternamente appare in buono stato manutentivo e dotato di finiture di buona qualità. Da segnalare, ai fini dell'appeal dell'asset, la dotazione di parcheggi posti perimetralmente al fabbricato.

Dettaglio immobile

Contratto Vendita
Rif IMMO-110403943
Prezzo € 266.475
Provincia Reggio Emilia
Comune Casalgrande
Indirizzo Via Canale 300
Superficie 331 mq
Classe energetica Non indicata
Condizioni abitabile
Ascensore no

Consistenze

Descrizione Superficie Sup. comm.
Principali
Ufficio - piano terra 331 Mq 331 Mqc
Totale 331 Mqc

Planimetrie

Richiedi maggiori informazioni

Autorizzazione al trattamento dei dati personali+
Dichiaro di aver letto l'informativa sulla privacy ed accetto le condizioni d'utilizzo del servizio.
Riempi il campo con il codice riportato nell'immagine*
Codice Captcha
Chiamaci Contattaci