Locale commerciale in vendita a Castelfranco Emilia (MO)

Rif: IMMO-122361034
Condividi Linkedin Whatsapp Stampa
Tratt. riservata
Vendita
Locale commerciale
70 Mq
Classe energetica Non indicata
Centro Commerciale Le Magnolie vendiamo negozio in bella posizione con doppio ingresso, sia interno (fronte casse) che esterno centro.

Dettaglio immobile

Contratto Vendita
Rif IMMO-122361034
Prezzo Tratt. riservata
Provincia Modena
Comune Castelfranco Emilia
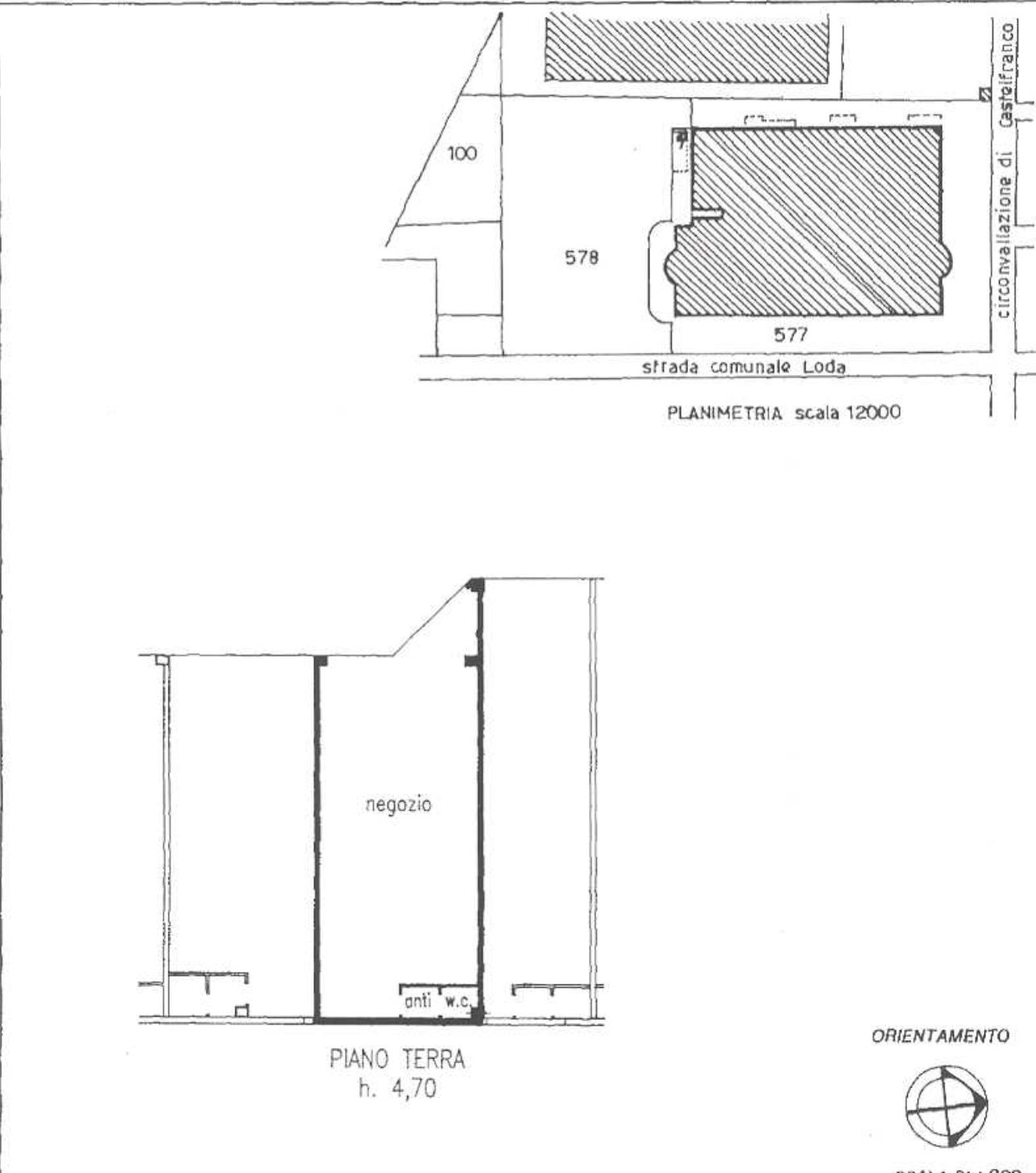
Indirizzo Via Loda 6
Superficie 70 mq
Classe energetica Non indicata
Condizioni abitabile
Ascensore no

Consistenze

Descrizione Superficie Sup. comm.
Principali
Negozio - piano terra 70 Mq 70 Mqc
Totale 70 Mqc

Planimetrie

Richiedi maggiori informazioni

Autorizzazione al trattamento dei dati personali+
Dichiaro di aver letto l'informativa sulla privacy ed accetto le condizioni d'utilizzo del servizio.
Riempi il campo con il codice riportato nell'immagine*
Codice Captcha
Chiamaci Contattaci